12-10-2023
Закладной фундамент для квартальных трубчатых опор
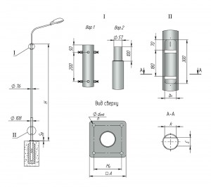
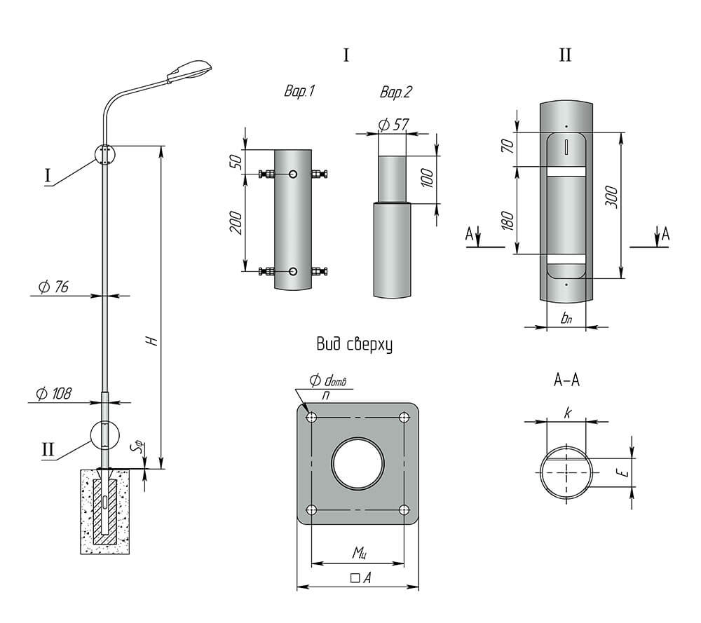
Применение фундамента актуально для трубчатых или фланцевых опор в трудно устанавливаемых местах. Подземная часть должна иметь специальные отверстия для того, чтобы выводить кабель на поверхность. Наша компания ООО "Западно-Уральский завод Металлических Изделий" ("ЗУЗМИ-Сыктывкар") специализируется на производстве и закладке фундамента для уплотнения и увеличения прочности устанавливаемой конструкции.
* быструю установку;
* дешевизна;
* эстетичность;
* прочность;
* качество.
Чтобы квартальные трубчатые опоры могли служить долго, необходимо использовать достаточно крепкое основание. При выборе фундамента стоит учитывать характеристики и свойства грунта. Основание конструкции выполняет основную функцию – держит трубчатые опоры. Следует учитывать наличие отверстия для вывода питающего кабеля.
Качество выполненной опоры влияет на дальнейший срок службы конструкций. Поэтому закладной фундамент должен быть изготовлен на специализированном предприятии согласно всем требованиям. Вас могут также заинтересовать опоры трубчатые квартальные прямостоечные.
* производят разметку границ;
* выкапывают яму соответствующего размера;
* закладывают тело фундамента.
В данном процессе используется некоторые виды фундамента: с песчаной подушкой, опалубок с армированием, ФЛ блоками. При заливании котлована образуются пустоты, которые следует заполнять. Это производится с помощью бетона после установки трубчатых конструкций.
Чем качественней выполнена основа, тем больше вероятности долгой службы установленных столбов или опор. Уплотненный грунт позволяет делать требуемое место установки приемлемым для монтажа. Наш завод также предлагает опоры трубчатые прямостоечные уличного освещения.
рассчитают и подскажут с приобретением товара. Мы выполняем изготовление и доставку фундамента по Сыктывкару и Республике Коми.
Стоимость закладных фундаментов для квартальных трубчатых опор в Сыктывкаре:
Фото изготовленных нашим заводом закладных фундаментов для квартальных трубчатых опор в Сыктывкаре:
Характеристики и преимущества
Использование качественных закладных элементов фундамента – залог продолжительной службы изготавливаемой ЖБ конструкции. Основными преимуществами считают:* быструю установку;
* дешевизна;
* эстетичность;
* прочность;
* качество.
Чтобы квартальные трубчатые опоры могли служить долго, необходимо использовать достаточно крепкое основание. При выборе фундамента стоит учитывать характеристики и свойства грунта. Основание конструкции выполняет основную функцию – держит трубчатые опоры. Следует учитывать наличие отверстия для вывода питающего кабеля.
Качество выполненной опоры влияет на дальнейший срок службы конструкций. Поэтому закладной фундамент должен быть изготовлен на специализированном предприятии согласно всем требованиям. Вас могут также заинтересовать опоры трубчатые квартальные прямостоечные.
Процесс выполнения закладного фундамента
Закладка фундамента делается на основе бетона высокого качества. Для того, чтобы конструкция прочно стояла в земле, необходимо достаточно прочное ее основание. Его выполняют в несколько этапов:* производят разметку границ;
* выкапывают яму соответствующего размера;
* закладывают тело фундамента.
В данном процессе используется некоторые виды фундамента: с песчаной подушкой, опалубок с армированием, ФЛ блоками. При заливании котлована образуются пустоты, которые следует заполнять. Это производится с помощью бетона после установки трубчатых конструкций.
Чем качественней выполнена основа, тем больше вероятности долгой службы установленных столбов или опор. Уплотненный грунт позволяет делать требуемое место установки приемлемым для монтажа. Наш завод также предлагает опоры трубчатые прямостоечные уличного освещения.
Услуги компании
Наша компания ООО «ЗУЗМИ-Сыктывкар» производит закладной фундамент, отличающийся высоким качеством, отличной прочностью, устойчивостью к внешним факторам. Опытные работникирассчитают и подскажут с приобретением товара. Мы выполняем изготовление и доставку фундамента по Сыктывкару и Республике Коми.
Стоимость закладных фундаментов для квартальных трубчатых опор в Сыктывкаре:
Фото изготовленных нашим заводом закладных фундаментов для квартальных трубчатых опор в Сыктывкаре: