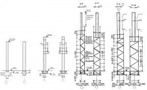
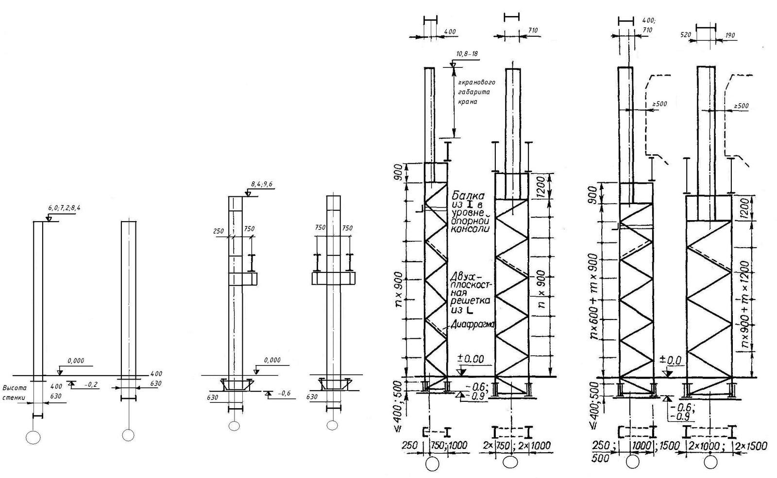
Колонны металлические двухветвевые

Колонны металлические двухветвевые активно используют в строительной отрасли, благодаря их использованию можно существенно упростить монтаж. Колонные монтируют на специальные опорные плиты, используя для фиксации анкерные болты. Крепежные элементы в свою очередь опираются на опорные столики.

Описание готовой продукции

Двухветвевые колонны, выполненные из металла, пользуются популярностью в промышленном строительстве. Использование данных элементов позволяет грамотно распределить нагрузку, кроме этого, расход материалов остается рациональным.
Если рассматривать строение готовой продукции, то состоят они из следующих элементов:
  • Надкрановая часть.
  • Подкрановая часть. Сюда входят: наружная ветвь, решетчатые элементы, внутренняя ветвь.
  • База.
  • Элементы, сопряженные с надкрановой и подкрановой частями.
  • Оголовок.
Данная конструкция обладает высоким уровнем жесткости. Обусловлено это в первую очередь тем, что на данные изделия приходится достаточно большая нагрузка. Надежная фиксация осуществляется при помощи анкерных болтов.

Заказать двухветвевые колонны из металла в Сыктывкаре и Республике Коми.

В ООО «Западно-Уральский завод Металлических Изделий» можно не только взять готовую продукцию из металла и строительную технику по договору аренды на период строительных работ в Сыктывкаре и Республике Коми, но и приобрести колонны, выполненные из металла.

Стоимость напрямую зависит от объема сделанного заказа. Получить всю необходимую информацию, а также подписать документы можно в офисе продаж, находящемся по адресу: г. Сыктывкар,ул. Ленина, д.15, офис 104.

Для получения консультации не обязательно куда-то выезжать, достаточно связаться со специалистом любым удобным способом:
  • позвонить по номеру телефона – 8(800)551-90-68;
  • посетить офис по указанному выше адресу;
  • отправить письмо на почту: syktyvkar@zuzmi.ru.
Арендовать специальную технику для проведения строительных работ, а также приобрести готовую металлическую продукцию можно на территории Сыктывкара и Республики Коми с доставкой до строительного объекта. Кроме этого, доставка готовой продукции осуществляется по всей России.